Villa For Sale in Paphos, Geroskipou
- €872,175
Description
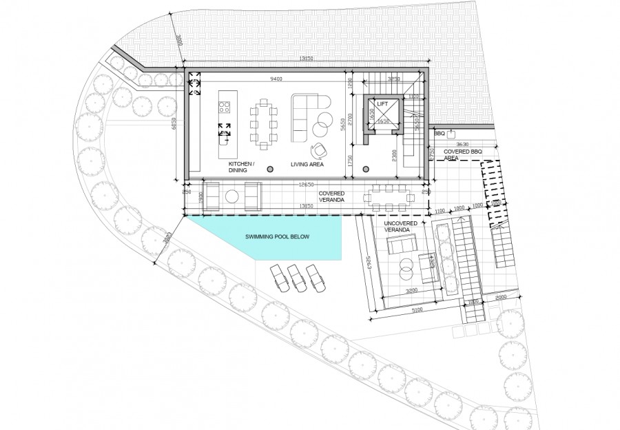
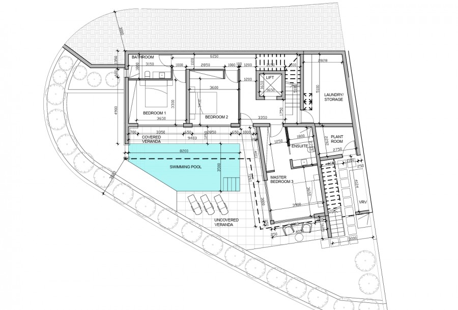
Nestled in the picturesque hills of Geroskipou, this project redefines luxury living through its boutique villa development comprising 15 detached villas, each promising meticulous attention to detail and high-end specifications. Designed for exclusivity and privacy, every villa within the project offers a unique and lavish living experience. The development offers panoramic views of the sea, city, and the. Every villa features cutting-edge architecture, thoughtfully designed expansive interior spaces, and open-plan living areas adorned with high ceilings, inviting an abundance of natural light through floor-to-ceiling sliding doors and windows.Delivery – May 2027.
Address
Open on Google Maps-
City: Paphos
-
State/county: Geroskipou
-
Country: Cyprus
Details
Updated on October 18, 2025 at 4:16 am-
Property ID BH37564
-
Price €872,175
-
Property Size 223 Sqm
-
Bedrooms 3
-
Property Type Villa
-
Property Status For Sale





